Фасадная система РОНСОН-200 под Металлокассеты

  • Описание системы
  • Документация к системе
  • Фотографии + чертежи + узлы
  • Комплектующие
Компания «Алфас» предлагает решение для крепления облицовки металлокассет на системе «РОНСОН-200».

Возможна система крепления как по всей поверхности стены, так и исключительно в межэтажные перекрытия.

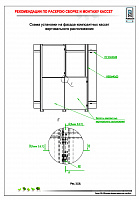
Облицовка зданий кассетами из алюмокомпозита получила широкое применение на многих зданиях производственного назначения, торговых центрах и даже на жилых домах, благодаря своей универсальности и технократичности.

Система НВФ «РОНСОН-200» обладает рядом преимуществ:

  • Высокая скорость монтажа
  • Надежное крепление
  • Возможность обеспечить швы шириной от 10 до 20 мм
  • Возможность расположения кассеты как в вертикальном, так и в горизонтальном направлении
  • Выполнен ряд объектов с размером кассет до 3 метров по горизонтали

89f4d83371e848f4a1ac3afff4edfde4
89f4d83371e848f4a1ac3afff4edfde4
da68d18c6738cbd4bc9f0128dab0e0f0
da68d18c6738cbd4bc9f0128dab0e0f0
483f64cf27e385f685ef0ae804b6a65a
483f64cf27e385f685ef0ae804b6a65a
46045227f6e45621eea4fc9abcb83c06
46045227f6e45621eea4fc9abcb83c06
55c6f672fa3f70b0347ef0eea6e38eef
55c6f672fa3f70b0347ef0eea6e38eef
36da0562a962a9fb96c870b8c6912b93
36da0562a962a9fb96c870b8c6912b93
31b6966d752331aca0ed8065c52aca6c
31b6966d752331aca0ed8065c52aca6c
cb3272604b94cfa778f75d207841a2d3
cb3272604b94cfa778f75d207841a2d3
147fa6a4e8df1abad0e3b5aef45a685e
147fa6a4e8df1abad0e3b5aef45a685e
090de54924a3237edf93f1d4ea7e777a
090de54924a3237edf93f1d4ea7e777a
90acee9be5c94fa5b29649b46ae2a71e
90acee9be5c94fa5b29649b46ae2a71e
449976c5882d950adeafb9a39e3c0376
449976c5882d950adeafb9a39e3c0376
c34cf8ecab920d0345358d877e544ca2
c34cf8ecab920d0345358d877e544ca2
06dfc5f75265baafba866d8f99a5ffce
06dfc5f75265baafba866d8f99a5ffce
086e903bc1a5adde3bdc5c4cf84cde61
086e903bc1a5adde3bdc5c4cf84cde61
4ceb2c926f3d7fdfc5e740754826eba5
4ceb2c926f3d7fdfc5e740754826eba5
2bdd31b169b5582b8f71c9fc5c0da296
2bdd31b169b5582b8f71c9fc5c0da296
5734925d9a91ad4a59f07af40e0eec66
5734925d9a91ad4a59f07af40e0eec66
7d60f77cd490c382466864a92221354a
7d60f77cd490c382466864a92221354a
d8ddb38089584b48ad4ef0244ed7310b
d8ddb38089584b48ad4ef0244ed7310b
7b9f7c1d16cf59dfd0c281f71e0f3fd8
7b9f7c1d16cf59dfd0c281f71e0f3fd8
4981fbdc75ce04a5799af37d65b91151
4981fbdc75ce04a5799af37d65b91151
1ec89ac50cd57546a0fb131fa08f28d0
1ec89ac50cd57546a0fb131fa08f28d0
968a29c2391d9228ea932ea52bd696bd
968a29c2391d9228ea932ea52bd696bd
baa9f6722075d15459e274e70e222195
baa9f6722075d15459e274e70e222195
a70a33603887f7dea586ab4326067d9d
a70a33603887f7dea586ab4326067d9d
37ffeb492ab5a07041c595b38b1bba0e
37ffeb492ab5a07041c595b38b1bba0e
e04ed744811cda3b4afd793b3566c546
e04ed744811cda3b4afd793b3566c546
4f5dace1588ed16c442beaff2e17e554
4f5dace1588ed16c442beaff2e17e554
Для вас предусмотрена скидка от базовых цен!
Отправить заявку

Другие фасадные системы под
Металлокассеты

Заказать расчёт сметы. БЕСПЛАТНО!